Free Egress Window Building Permit Drawings
How To Use These Assets
1: Download and unzip the folder you need.
2: Open the Egress Window CAD™ Editor
3: Using the top tool-bar, find the option in the first menu on the left to import an image('place-image').
4: Select the images in the asset pack ending in '.svg' and edit for your specific requirements.
Egress Window Building Permit Drawing Checklist
Most municipalities require architectural drawings for basement egress windows. While some may be more relaxed than others, the following list will give you a good idea of what they are looking for. There will be more detailed guides as to each item which will allow you to use Egress Window CAD™ to quickly draft all the documents you need.
Scale & Document Size
All building departments require drawings to be at scale so that the true dimensions can be quickly determined.
Some municipal departments request a certain document size, such as 8 ½” x 11” sheets. If your project is in Columbus, Ohio Metro, you will find information on many building departments below.
1: Plot plan showing footprint of house and other structures and driveway, and window well.
2: Basement floor plan (to scale) including all windows, rooms, mechanical equipment.
3: Photos showing elevation where egress window is proposed and close up of area. If an existing window is proposed to be replaced, it is good practice to include a photo or scaled drawing of that window.
4: Description of existing window; if applicable: dimensions, materials, style.
5: Description of proposed window: dimensions, materials, style, cut sheet, profile.
6: Window Well dimensions (width/depth) from house/depth of well/height above.
7: Window Well materials.
8: Information on anything else proposed: ladder, well cover, drainage.
9: Any other information that will clarify the proposed work.
For basement egress window:
If enlarging an existing basement window, if possible make the existing opening deeper but not wider to retain the above grade proportion of the window.
Some HOAs and municipalities require basement egress windows to be located on the back of the building, especially when room between adjacent homes is limited. However, many are usually able to make an exception for window wells on the side near the back if some other means of providing legal egress is unfeasible. Building & Zoning departments review such on a case by case basis. Floorplans should be used to show conditions (such as washers/dryers/furnaces/bathrooms/porches) that prevent egress windows from being located on the rear elevation.
Many require the glass in the proposed window to be at a similar depth from the exterior wall face as the glass in existing basement.
Architectural Scale
Here are some examples of scales used in architectural drawings:
- 1/4 in = 1 ft
- 1/8 in = 1 ft
- 3/16 in = 1 ft
- 1/50th (1 to 50)
- 1/100th (1 to 100)
- 1/200th (1 to 200)
- 1/500th (1 to 500)






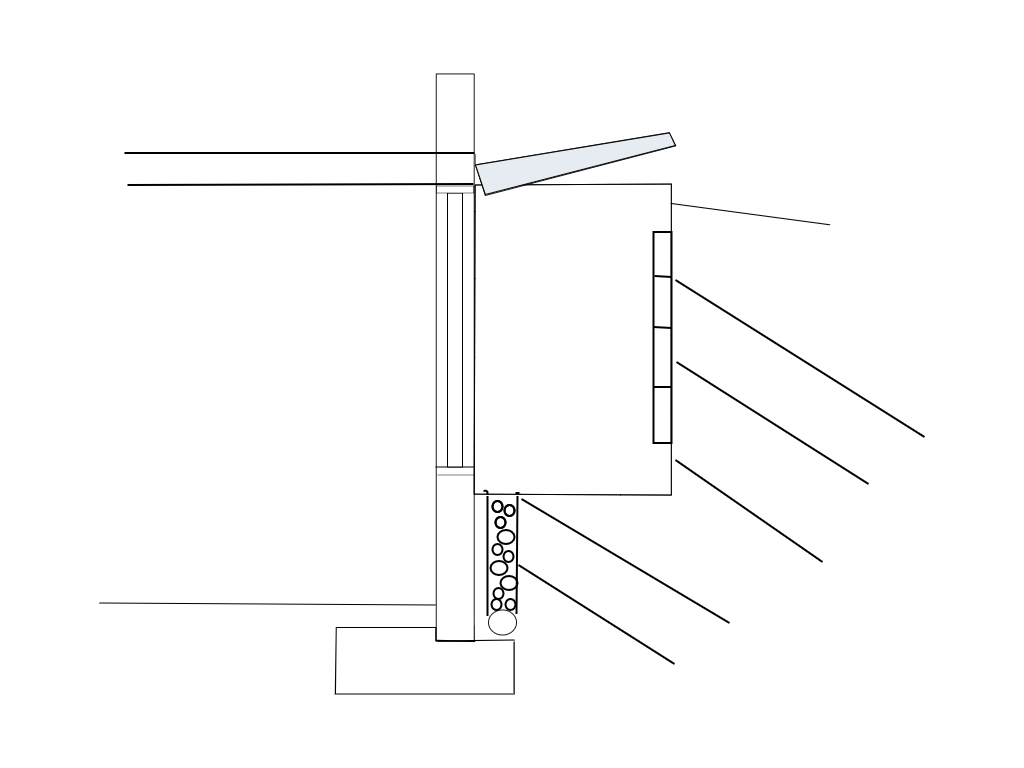
Egress Window CAD™ Examples












Columbus, Ohio Metro Building Departments
City of Bexley
2242 East Main St.Bexley, OH 43209
www.bexley.org
Building Department: p: 614.559.4240
City Hall: p: 614.559.4200 | f: 614.559.4201
CONTACTS:
- Kathy Rose, Director of Building & Zoning
e: krose@bexley.org - David Hrdlicka, Code Enforcement Officer
e: dhrdlicka@bexley.org - Robin Shetler, Assistant Manager
e: rshetler@bexley.org
NEW POLICIES:
- All permit applications are now online at www.bexley.org.
- An architectural review is now required for all exterior changes to residential principal structures.
- All general contractors, electrical contractors, plumbing and HVAC contractors are required to register to do business in the City of Bexley. There is a $125 annual registration fee beginning Jan. 1 through Dec. 31 each calendar year. All registrations expire Dec. 31 of the year issued.
HOLIDAY SCHEDULE - The City of Bexley offices will be closed the following holidays in 2024:
- New Year's Day
- Martin Luther King, Jr. Day
- President's Day
- Memorial Day
- Juneteenth
- Independence Day
- Labor Day
- Thanksgiving - Nov. 28 & 29
- Christmas Day
Bloom Township
8490 Lithopolis Rd.
Carroll, OH 43112
p: 614.837.4387 | f: 614.837.7576
www.bloomtwp.org
CONTACTS:
- Anne D. Cyphert, Zoning Administrator
- Teresa Philbrick, Administrative Assistant
REGULAR BUSINESS HOURS:
- Monday - Thursday
9:30 AM - Noon (or by appointment) - Closed Fridays
POLICIES:
- For detailed information regarding policies, please visit www.bloomtwp.org.
- All zoning permits should be applied for and obtained from the office at 8490 Lithopolis Rd., Carroll, OH 43112.
HOLIDAY SCHEDULE - Bloom Township offices will be closed the following holidays:
- New Year's Eve
- New Year's Day
- Martin Luther King, Jr. Day
- Memorial Day
- Independence Day
- Labor Day
- Veterans Day
- Thanksgiving
- Christmas Eve & Christmas Day
Village of Brice
5990 Columbus St.P.O. Box 65
Brice, OH 43109
p: 614.864.8591 | f: 614.864.0733
www.briceohio.com
CONTACTS:
- John Mathys, Mayor
- Jim McFarland, zoning officer
p: 614.864.8591 | zoning@briceohio.com
All permit, inspections and zoning concerns may be directed to Jim McFarland at 614.864.8591.
Village of Brice Building and Zoning meetings take place on the second Thursday of each month, one hour prior to the Village Council Meetings.
HOLIDAY SCHEDULE - The Village of Brice offices will be closed the following holidays:
- New Year's Eve
- Martin Luther King, Jr. Day
- President's Day
- Memorial Day
- Independence Day
- Labor Day
- Columbus Day
- Veteran's Day
- Thanksgiving Day
- Day after Thanksgiving
- Christmas Day
City of Canal Winchester
45 E. Waterloo St..Canal Winchester, OH 43110
p: 614.837.7493 | f: 614.837.0145
www.canalwinchesterohio.gov
CONTACTS:
- Development Department (Development, Planning, Zoning and Building)
p: 614.837.7501 | f: 614.837.0145 - Lucas Haire, Development Director
e: lhaire@canalwinchesterohio.gov | p: 614.837.1894 - Andrew Moore, Planning and Zoning Administrator
e: amoore@canalwinchesterohio.gov | p: 614.837.6742 - Liz Rodawalt, Administrative Assistant
e: lrodawalt@canalwinchesterohio.gov
For building related questions: Contact Liz Rodawalt
For zoning related questions: Contact Andrew Moore
Building Inspection Call-In Number: 614.834.5104
The following information is required to schedule an inspection:
- Name and phone number of person calling in the inspection
- Type of inspection required
- Lot number and address of the subject property
- Permit number
REGULAR BUSINESS HOURS:
8 AM - 4:30 PM
POLICIES:
- Contractor Registration: Canal Winchester does not require local registration.
- Building permit applications are available from the village's website.
- Two (2) sets of plans are required for residential submittals.
- Four (4) sets of plans, signed and sealed by the architect or engineer preparing the plans, are required for commercial or industrial submittals.
- For plumbing inspections, contact the Franklin County Board of Health at 614.525.3160.
HOLIDAY SCHEDULE - City offices will be closed the following dates:
- New Year's Day
- Martin Luther King Day
- President's Day
- Good Friday
- Memorial Day
- Independence Day
- Labor Day
- Veteran's Day
- Thanksgiving Day and the Friday after
- Christmas Day
City of Columbus
Department of Building & Zoning Services111 N. Front St.
Columbus, OH 43215
p: 614.645.7433 | f: 614.645.0333
www.columbus.gov/bzs
GENERAL CONTACT INFORMATION:
- Records Research Center: 614.645.6082
- Zoning Clearance: 614.645.8637
- Building Plan Review & Building Codes: 614.645.7562
- Permits: 614.645.7433
- Automated Inspection Scheduling: 614.645.8235
- Engineering Plan Review: 614.645.0032
CUSTOMER SERVICE CENTER:
Hours: Monday - Friday (9 AM - 4 PM)
p: 614.645.7433
www.columbus.gov/bzs
OTHER CONTACTS:
- Scott Messer, Director
e: SSMesser@columbus.gov | p: 614.645.7776 - Amit Ghosh, Chief Building Official
e: ABGhosh@columbus.gov | p: 614.645.5990 - Anthony J. Celebrezze, Deputy Director
e: AJCelebrezze@columbus.gov | p: 614.645.6769 - Andy Beard, Chief Plans Official
e: ASBeard@columbus.gov | p: 614.645.8458 - Shannon Pine, Chief Zoning Official
e: SPine@columbus.gov | p: 614.645.2208 - Cynthia Rickman, Assistant Director
e: CJRickman@columbus.gov | p: 614.645.8795 - Festus Manly-Spain, Assistant Director
e: FAManly-Spain@columbus.gov | p: 614.645.2715 - Nicholas Newnham, Customer Service Manager
e: NGNewnham@columbus.gov | p: 614.645.4685
HOLIDAY SCHEDULE - City of Columbus Department of Building & Zoning Services offices will be closed the following holidays:
- New Year's Day
- Martin Luther King Jr. Day
- President's Day
- Memorial Day
- Juneteenth
- Independence Day
- Labor Day
- Veterans Day
- Thanksgiving Day
- Christmas Day
City of Dublin
5200 Emerald ParkwayDublin, OH 43017
p: 614.410.4670 | f: 614.761.6566
www.dublinohiousa.gov
CONTACTS:
- Brad Fagrell, P.E., Director of Building Standards / Chief Building Official
p: 614.410.4666 | e: bfagrell@dublin.oh.us - Tim Stitt, Senior Building Inspector
p: 614.410.4671 | e: tstitt@dublin.oh.us - Bryan Lenko, Building Inspector
p: 614.410.4606 | e: blenko@dublin.oh.us - Seth Harding, Building Inspector
p: 614.410.4692 | e: sharding@dublin.oh.us - Lee Montgomery, Building Inspector
p: 614.410.4646 | e: lmontgomery@dublin.oh.us - Matt Ross, Building/Electrical Inspector
p: 614.410.4687 | e: mross@dublin.oh.us - Mike Wills, Building Inspector
p: 614.410.4605 | e: mwills@dublin.oh.us - Ted Zombek, Electrical Inspector
p: 614.410.4645 | e: tzombek@dublin.oh.us - Ray Harpham, Commercial Plan Examiner
p: 614.410.4612 | e: rharpham@dublin.oh.us - Brad Conway, Residential Plans Examiner
p: 614.410.4613 | e: bconway@dublin.oh.us - Velma Coen, Zoning Reviewer
p: 614.410.4667 | e: vcoen@dublin.oh.us - Debra Fite, Review Services Coordinator
p: 614.410.4608 | e: dfite@dublin.oh.us
POLICIES:
As of Dec. 9, 2019, all planning and permit applications will be processed online instead of via a paper application. The City of Dublin has launched a new program to improve the permit and plan application process. | read more |
PHONE NUMBERS:
Building Standards Division:
- Permit Window - 614.410.4670
- Review Services - 614.410.4608
- Inspection Scheduling - 614.410.4680
HOLIDAY SCHEDULE - The City of Dublin will be closed the following holidays:
- New Year's Day
- Martin Luther King, Jr. Day
- President's Day
- Memorial Day
- Independence Day
- Labor Day
- Veteran's Day
- Thanksgiving Day
- Christmas Day
City of Gahanna
200 S. Hamilton Rd.
Gahanna, OH 43230
p: 614.342.4010 | f: 614.342.4100
www.gahanna.gov
CONTACTS:
Building & Zoning Division
p: 614.342.4010 | www.zoning@gahanna.gov
- Michael Blackford, Planning & Development Interim Director
e: michael.blackford@gahanna.go - Ken Fultz, Chief Building Official
e: ken.fultz@gahanna.gov - Mike Frey, Building & Heating Inspector
e: mike.frey@gahanna.gov - Bonnie Gard, Zonine Administrator
e: bonnie.gard@gahanna.gov - Zack Cowan, Zoning Administrator
e: zack.cowan@gahanna.gov
NEW AS OF 2018: General contractors along with remodeling contractors are now required to be registered with the City. Contractors previously registered as home improvement contractors will now be registered as general contractors or as remodeling contractors. Contractors installing new sidewalks and driveways, replacing driveway aprons and retaining walls requiring building permits are now required to be registered as general contractors or remodeling contractors.
Annual contractor registration for general contractors, remodelers, HVAC, electrical, fence, gas piping, plumbing and signs can now be completed online!
INSPECTIONS
Inspection requests must be received by 4 p.m. for the following day.
HOLIDAY SCHEDULE: The City of Gahanna offices will be closed the following holidays:
- New Year's Day
- Martin Luther King, Jr. Day
- President's Day
- Memorial Day
- Independence Day
- Labor Day
- Columbus Day
- Veteran's Day
- Thanksgiving Day
- Day after Thanksgiving
- Christmas Holiday
City of Grandview Heights
1260 McKinley Ave.
Columbus, OH 43222
p: 614.481.6220 | f: 614.481.6222
www.grandviewheights.org
CONTACT:
- Bob Mezera, Director of Building & Zoning
e: rmezera@grandviewheights.gov | p: 614.481.6220 - Megan Lonergan, Administrative Coordinator
e: mlonergan@grandviewheights.gov - Mike Wills, Building Inspector/Technician II
e: mwills@grandviewheights.gov
HOURS: 7:30 AM to 4 PM
- Building Inspections and HVAC inspections daily
- Electrical inspections - Monday - Friday (Except on observed holidays)
30-minute call ahead AM or PM inspection. - Plumbing inspections by Franklin County Public Health: 614.525.3876
HOLIDAY SCHEDULE: The City of Grandview Heights offices will be closed the following holidays:
- New Year's Day
- Martin Luther King Day
- President's Day
- Memorial Day
- Independence Day
- Juneteenth
- Labor Day
- Veterans Day
- Thanksgiving Day
- Day after Thanksgiving
- Christmas Day
City of Grove City
4035 Broadway
Grove City, OH 43123
p: 614.277.3075 | f: 614.277.3090
www.grovecityohio.gov
CONTACTS:
- Michael P. Boso, Chief Building & Zoning Officer
e: mboso@grovecityohio.gov - Mike Chinn, Building Inspector
- Paul Dummel, Electrical Inspector
- Bill Felger, Plumbing Inspector
- Matt Fitzpatrick, Plumbing Inspector
- Amy Morrow, Building Account Clerk
- Jed Plank, Property Maintenance Inspector
- Laura Scott, Planning and Zoning Coordinator
- Justin Taylor, Building Inspector
POLICIES:
- The City of Grove City is pleased to announce improvements to the Building Division software and the implementation of a streamlined fee schedule. All users must visit the Building Division online portal to establish a new account.
HOLIDAY SCHEDULE: Grove City offices will be closed the following dates:
- New Year's Day
- Martin Luther King Day
- President's Day
- Memorial Day
- Independence Day
- Labor Day
- Columbus Day
- Veteran's Day
- Thanksgiving Day and the Friday after
- Christmas Holiday
City of Groveport
655 Blacklick St.
Groveport, OH 443125
p: 614.830.2045 | f: 614.567.2498
www.groveport.org
CONTACTS:
- Stephen Moore, Chief Building Official
e: smoore@groveport.org - Michael Poirier, Building Inspector
e: mpoirier@groveport.org - Steve Farst, City Engineer
e: sfarst@groveport.org - Teresa Veit, Building Clek
e: buildingclerk@groveport.org
POLICIES:
Our department has contracts with Madison Township to provide Building Department Services for commercial projects. A certificate of zoning compliance is required for the Madison Township prior to submitting building plans to the City of Groveport for approval.
HOLIDAY SCHEDULE - The City of Groveport will be closed the following holidays in 2024:
- New Year's Day
- Martin Luther King Day
- Memorial Day
- Independence Day
- Juneteenth
- Labor Day
- Veteran's Day
- Thanksgiving (Nov. 28 & 29)
- Christmas Eve
- Christmas Day
City of Hilliard
3800 Municipal Way
Hilliard, OH 43026-1696
p: 614.334-2557
www.hilliardohio.gov
Portal: https://hilliardoh.portal.opengov.com/
CONTACTS:
- Direct dial for Building Division: 614.334.2557
- General email inquiry: building@hilliardohio.gov
- Inspections: https://hilliardoh.portal.opengov.com/
- Michael D. Hulsey, Chief Building Official
e: mhulsey@hilliardohio.gov | p: 614.334.2372 - Don Barlow, ResidentialBuilding Inspector/Electrical Inspector | p: 614.334.2448
e: dbarlow@hilliardohio.gov - Jeanne Amicon, Senior Permit Tech (ICC Certified)
e: jamicon@hilliardohio.gov | p: 614.334.2436 - Rhonda Parson, Permit Tech
e: rparson@hilliardohio.gov | p: 614.876.7361 x799
REGULAR BUSINESS HOURS:
Counter Hours: Monday - Friday (8 AM - 4:30 PM)
POLICIES:
All submittals are through our OpenGov Portal: https://hilliardoh.portal.opengov.com/
Inspections are to be requested through the OpenGov Portal. (We are a paperless office.)
HOLIDAY SCHEDULE - City of Hilliard offices will be closed the following dates in 2024:
- New Year's Day
- Martin Luther King Day
- President's Day
- Memorial Day
- Juneteenth
- Independence Day
- Labor Day
- Veteran's Day
- Thanksgiving Holidays - (Thursday & Friday)
- Christmas Holidays - Dec. 25 & TBD
Village of Lithopolis
11820 Lithopolis Rd.P.O. Box 278
Lithopolis, OH 43136
p: 614.837.2031 | f: 614.837.2722
www.lithopolis.org
CONTACTS:
- Building Inspection Call-In Number: 614.224.2300
- Building & Zoning Information online
- Amanda Wolin, Zoning Inspector
e: amanda.wolin@lithopolis.org
- Name and phone number of person calling in the inspection
- Type of inspection required
- Lot number and address of the subject property
- Permit number
HOLIDAY SCHEDULE - The Village of Lithopolis will be closed the following holidays:
- New Year's Day
- Martin Luther King, Jr. Day
- President's Day
- Memorial Day
- Independence Day
- Labor Day
- Columbus Day
- Veteran's Day
- Thanksgiving Day
- Christmas Day
City of New Albany
99 W. Main St.P.O. Box 188
New Albany, OH 43054
p: 614.939.2254 | f: 614.939.2234
www.newalbanyohio.org
CONTACTS:
- Jennifer Chrysler, Community Development Director
- Allison Criger, Administrative Assistant
- Ryan Ohly, City Engineer
- Cara Denny, Engineering Manager
- Will Walther, Development Engineer
- Ryan Hanigan, Assistant CBO
- Beth Richardson, Development Coordinator
- Pam Hickok, Permit Specialist
- Alan Duffy, Building Inspector
- Tim Schaffner, Building Inspector
- Patrick Young, Building Inspector
- Mike McSorley, Building Inspector
- Steve Mayer, Planning Manager
- Chris Christian, Planner II
- Chelsea Nichols, Planner
- Sierra Cratic-Smith, Planner
- Sara Zeigler, Economic Development Manager
- Jackie Russell, Economic Development Specialist
- Kathy Whitley, Clerk
- Erica Johnson, Clerk
POLICIES:
- The Community Development Department is dedicated to safeguarding the quality of life, health, safety and welfare of New Albany's residents and the public through the enforcement of codes, ordinances, regulations, and to conduct business in a courteous and professional manner. We strive to support further growth, the orderly development and the future vitality of the city and surrounding communities.
- Permit applications and inquiries are made at the city office at 99 West Main St. or by calling 614.939.2254.
- All inspections must be requested by 4 PM to receive the inspection the next business day. All inspections that require both City Inspectors and Fire Department must be requested 48 hours in advance.
- The inspection line 614. 939.2222 can be accessed 24 hours a day.
HOLIDAY SCHEDULE - City of New Albany will be closed the following holidays:
- New Year's Day
- Martin Luther King, Jr. Day
- President's Day
- Memorial Day
- Independence Day
- Labor Day
- Veteran's Day
- Thanksgiving Day and the Friday after
- Half-day Christmas Eve - Dec. 24
- Christmas Day - Dec. 25
Note: If a holiday occurs on a Saturday, the holiday will be observed on Friday. If the holiday occurs on a Sunday, the holiday will be observed on a Monday.
Village of Obetz
4175 Alum Creek Dr.Obetz, OH 43207
p: 614.491.1080 | f: 614.491.7507
www.obetz.oh.us
CONTACTS:
- Tamara Cramblit
e: tkitchen@obetz.oh.us | p: 614.409.4407 - Don Clark, Code Enforcement Officer
e: dclark@obetz.oh.us | p: 614.491.1080
Click on the following links for more information:
HOLIDAY SCHEDULE - Please check the Community Calendar section of the Obetz website for dates the building department offices will be closed.
Ohio Department of Commerce
6606 Tussing Rd.CONTACTS:
- Rob Coventry, Superintendent
robb.coventry@com.ohio.gov | p: 614.644.3948 - Patrick Reardon, Deputy Superintendent
(Elevator, Boiler, Bedding Operations, Wage & Hour)
e: patrick.reardon@com.ohio.gov | p: 614.728.0052 - Stephen M. Risser, PE, Chief Building Official
e: stephen.risser@com.ohio.gov | p: 614.644.3428 - Michael Thompson, ESI, Assistant Bureau Chief/Electrical Supervisor
e: michael.thompson@com.ohio.gov | p: 614.728.5293 - David Merrick, NCARB, Plans Examiner Supervisor
e: david.merrick@com.ohio.gov | p: 614.644.2829 - Aaron Streng, Plumbing Supervisor
e: aaron.streng@com.ohio.gov | p: 614.644.3153 - Michelle Grago, Structural Supervisor
e: michelle.grago@com.ohio.gov | p: 937.416.3063 - Bryant Hillman, Manufactured Homes Program/Inspection Scheduling Supervisor
e: bryant.hillman@com.ohio.gov | p: 614.644.2231 - Woody Nelson, Support Staff Supervisor
e: woody.nelson@com.ohio.gov | p: (614) 752-1380
FOR INSPECTION REQUESTS
SERVICES PROVIDED:
- Service Hours - Monday - Friday (8 AM - 5 PM)
- Preliminary Plan Review - by appointment, request through portal
- Expedited Plan Review - request "walk-in" plan review through portal
- Building Plan Review - submit through portal
- Plumbing Plan Review - submit through portal
- Medical Gas Plan Review - submit through portal
- Phased Construction Plan Review - submit through portal
- Existing Building Certificate of Occupancy (ECOO) - submit through portal
- Request Inspection Without Sealed Drawings - submit through portal
- Pre-Construction Conference with Inspectors - call for appointment 614.752.1380
- Construction Progress Inspections - submit through portal the DAY BEFORE needed
- Additional details can be found at https://com.ohio.gov/divisions-and-programs/industrial-compliance
- New Year's Day
- Martin Luther King, Jr. Day
- President's Day
- Memorial Day
- Independence Day
- Labor Day
- Columbus Day
- Veteran's Day
- Thanksgiving
- Christmas Day
Orange Township
- Zoning Department
p: 740.548.5430 - Michele Boni, Township Administrator
e: mboni@orangetwp.org | p: 740.548.5430 x3125 - Robin Duffee, Development & Zoning Director
e: rduffee@orangetwp.org | p: 740.548.5430 x3106 - Andrew Koenig, Zoning Inspector
e: akoenig@orangetwp.org | p: 740.548.5430 x3124
ZONING APPLICATION FORMS
Current Zoning Code
- The current zoning code was adopted June 1, 2019.
- Comprehensive Land-Use Plan, "Planning Orange", 2018
- Certain activities, primarily public utilities and agricultural uses, are exempt by law from zoning requirements. Others, such as schools and state or county government uses must conform to zoning requirements to the extent possible. For zoning requirement details, visit the Orange Township website.
HOLIDAY SCHEDULE - Orange Township offices will be closed the following holidays:
- New Year's Day
- Martin Luther King Day
- President's Day
- Memorial Day
- Independence Day
- Labor Day
- Veteran's Day
- Thanksgiving Day and Friday after
- Christmas Eve
- Christmas Day
City of Pataskala
- Scott Fulton, Director of Planning
e: sfulton@ci.pataskala.oh.us | p: 740.927.2168 - Jack Kuntzsman, City Planner
e: jkuntzman@ci.pataskala.oh.us | p: 740.964.1316 - Alan W. Haines, Public Service Director
e: ahaines@ci.pataskala.oh.us | p: 740.927.0145 - Tim Hickin, City Administrator
e: thickin@ci.pataskala.oh.us | p: 740.964.2416
REGULAR BUSINESS HOURS:
POLICIES:
- For building permits, contact the Licking County Building Department at 740.349.6671.
- The Pataskala Corporate Park is located at State Route 16 and Mink St. This large parcel of contiguous acreage is prime for development, located in an area offering tax incentives, is part of a community of residential and support services and is accessible by the north, south and west.
HOLIDAY SCHEDULE - City of Pataskala offices will be closed the following dates:
- New Year's - Jan. 1
- Martin Luther King, Jr. Day
- President's Day
- Memorial Day
- Independence Day
- Labor Day
- Veteran's Day
- Thanksgiving Day and the Friday after
- Christmas Day
City of Canal Winchester
45 E. Waterloo St..Canal Winchester, OH 43110
p: 614.837.7493 | f: 614.837.0145
www.canalwinchesterohio.gov
CONTACTS:
- Development Department (Development, Planning, Zoning and Building)
p: 614.837.7501 | f: 614.837.0145 - Lucas Haire, Development Director
e: lhaire@canalwinchesterohio.gov | p: 614.837.1894 - Andrew Moore, Planning and Zoning Administrator
e: amoore@canalwinchesterohio.gov | p: 614.837.6742 - Liz Rodawalt, Administrative Assistant
e: lrodawalt@canalwinchesterohio.gov
For building related questions: Contact Liz Rodawalt
For zoning related questions: Contact Andrew Moore
Building Inspection Call-In Number: 614.834.5104
The following information is required to schedule an inspection:
- Name and phone number of person calling in the inspection
- Type of inspection required
- Lot number and address of the subject property
- Permit number
REGULAR BUSINESS HOURS:
8 AM - 4:30 PM
POLICIES:
- Contractor Registration: Canal Winchester does not require local registration.
- Building permit applications are available from the village's website.
- Two (2) sets of plans are required for residential submittals.
- Four (4) sets of plans, signed and sealed by the architect or engineer preparing the plans, are required for commercial or industrial submittals.
- For plumbing inspections, contact the Franklin County Board of Health at 614.525.3160.
HOLIDAY SCHEDULE - City offices will be closed the following dates:
- New Year's Day
- Martin Luther King Day
- President's Day
- Good Friday
- Memorial Day
- Independence Day
- Labor Day
- Veteran's Day
- Thanksgiving Day and the Friday after
- Christmas Day
Perry Township
- Mary Geiss, Administrative Assistant
e: mgeiss@perrytwp.org - John Petrozzi, Code Enforcement Inspector
e: zoning@perrytwp.org | p: 614.889.1211 - Andy English, Trustee
e: aenglish@perrytwp.org | p: 614.889.2669
REGULAR OFFICE HOURS:
- New Year's Day
- Martin Luther King, Jr. Day
- President's Day
- Memorial Day
- Independence Day
- Labor Day
- Columbus Day
- Thanksgiving (Thursday & Friday)
- Christmas Day
Pickaway County
CONTACTS:
- Candy Fulton, Permit Technician
e: cfulton@pickawaycountyohio.gov - Nikki Young, Permit Technician
e: nyoung@pickawaycountyohio.gov - Ryan Wilkins, Building Inspector
e: rwilkins@pickawaycountyohio.gov - Jeff Rush, Building Inspector
e: jrush@pickawaycountyohio.gov
OTHER INFORMATION:
The following forms can be found on the Pickaway County website:
- Building Department Form
- Permit Application Forms
- Contractor Registration Forms
- Contractor Bond Forms
HOLIDAY SCHEDULE - Offices of the Pickaway County Building Department will be closed the following holidays:
- Memorial Day
- Independence Day
- Labor Day
- Veteran's Day
- Thanksgiving
- Christmas
City of Pickerington
CONTACTS:
- Sandy Whittington, Building Department Manager
p: 614.833.2221 | e: swhittington@pickerington.net - Diane Steele, Permit Specialist
p: 614.833.2221 | e: dsteele@pickerington.net - Lily Lockett, Permit Specialist
p: 614.833.2221 | e: llockett@pickerington.net
POLICIES:
- Requests for inspections may now be emailed to: inspectionrequest@pickerington.net.
- Inspection requests and results are available on the city website under Business/Building Department.
HOLIDAY SCHEDULE - City of Pickerington offices will be closed the following holidays:
- New Year's Day
- Martin Luther King, Jr. Day
- President's Day
- Columbus Day
- Memorial Day
- Independence Day
- Labor Day
- Thanksgiving - Nov. 23 & 24
- Christmas Day
Note: If a holiday occurs on a Saturday, the holiday will be observed on Friday. If the holiday occurs on a Sunday, the holiday will be observed on a Monday.
City of Powell
CONTACTS:
- Kevin Moran, Chief Building Official, x1013
e: kmoran@cityofpowell.us - Seth Harding, Building Inspector, x1014
e: sharding@cityofpowell.us - Jon Merriman, Building Inspector
e: jmerriman@cityofpowell.us - Suzie Smiley, Permit Coordinator, x1012
e: smiley@cityofpowell.us - Jeffery Tyler, Community Development Director
e: jtyler@cityofpowell.us
NEW POLICIES:
HOLIDAY SCHEDULE - Offices of the City of Powell will be closed the following holidays:
- New Year's Eve - Close at noon Dec. 31
- New Year's Day
- President's Day
- Memorial Day
- Independence Day
- Labor Day
- Columbus Day
- Thanksgiving Day and the Friday after
- Christmas
City of Reynoldsburg
- Yeong Jiang, chief building official
- Mike Robinette, building inspector
- William Delong, code enforcement
- Tyler Fitch, code enforcement
- Shawn Lawson, code enforcement
- Shelley Slota, permit technician
e: sslota@ci.reynoldsburg.oh.us - Lisa Figueroa, permit technician
HOLIDAY SCHEDULE - City of Reynoldsburg will be closed the following holidays:
- New Year's
- Martin Luther King, Jr. Day
- President's Day
- Memorial Day
- Juneteenth
- Independence Day
- Labor Day
- Veterans Day
- Thanksgiving Day (and following Friday)
- Christmas Eve
- Christmas Day
Village of Sunbury
- Steven Pyles, Zoning Officer
e: spyles@SunburyOhio.org
POLICIES:
HOLIDAY SCHEDULE - The Village of Sunbury offices will be closed the following holidays:
- Martin Luther King, Jr. Day
- President's Day
- Memorial Day
- Independence Day
- Labor Day
- Columbus Day
- Veteran's Day
- Thanksgiving Day and the Friday after
- Christmas Day
Union County
CONTACTS:
- Sam Cronk, Chief Building Official
e: scronk@unioncountyohio.gov | p: 937.645.3083 - Jeff Stauch, Union County Engineer
e: jstauch@unioncountyohio.gov
OTHER INFORMATION:
- General Office: 937.645.3018
building@unioncountyohio.gov - Inspection Scheduling: 937.645.3019
POLICIES:
- Website: Click Here
- Online Permitting System: https://unioncountyoh.portal.opengov.com/
- Building Department Updates: Click Here
HOLIDAY SCHEDULE - Offices of the Union County Building Department will be closed the following holidays:
- New Year's Day - Jan. 1, 2024
- Martin Luther King Jr. Day - Jan. 15, 2024
- President's Day - Feb. 19, 2024
- Memorial Day - May 27, 2024
- Juneteenth - June 19, 2024
- Independence Day, July 4, 2024
- Labor Day - Sept. 2, 2024
- Columbus Day - Oct. 14, 2024
- Veteran's Day - Nov. 11, 2024
- Thanksgiving Break - Nov. 28 - 29, 2024
- Christmas Day - Dec. 25, 2024
City of Upper Arlington
- Roger Eastep, Chief Building Official
e: reastep@uaoh.net | p: 614.583.5072 - Ed Loper, Building Inspector
e: eloper@uaoh.net | p: 614.583.5079 - Justin Milam, AICP, Senior Planner
e: jmilam@uaoh.net | p: 614.583.5083 - Leslie Caldwell, Administrative Assistant
e: lcaldwell@uaoh.net | p: 614.583.5078
- All general contractors, electrical contractors, plumbing and HVAC contractors are required to register annually to do business in the City of Upper Arlington. There is a $100 annual registration fee beginning Jan. 1 through Dec. 31 each calendar year. All registrations expire Dec. 31 of the year issued.
HOLIDAY SCHEDULE - The City of Upper Arlington will be closed the following holidays:
- New Year's Day
- Martin Luther King Day
- President's Day
- Memorial Day
- Independence Day
- Labor Day
- Veteran's Day
- Thanksgiving
- Christmas Day
Violet Township
CONTACTS:
- Chief Building Official (Inspections & Occupancy)
e: permitting@violet.oh.us | p: 614.575.5559 - Kelly Sarko, Zoning Inspector
e: zoning_inspector@violet.oh.us | p: 614.575.5560
POLICIES:
- You are required to apply and institute drainage, erosion and sediment control for construction projects.
- Homeowners are to establish a plan for barrier around in-ground pools that is code compliant at plan review.
- 2019 R.C.O - Ohio Residential Building Code
- 2017 O.B.C. - Ohio Commercial Building Code
- Effective Jan. 1, 2005, Violet became a commercial state certified building department.
- Inspection requests will be accepted up to 2 PM the prior business day. Designated time requests for inspections are preferred.
HOLIDAY SCHEDULE - Violet Township offices will be closed the following dates:
- New Year's Day
- Martin Luther King, Jr. Day
- President's Day
- Memorial Day
- Juneteenth
- Independence Day
- Labor Day
- Columbus Day
- Veterans Day
- Thanksgiving
- Day After Thanksgiving
- Christmas Day
Note: If a holiday occurs on a Saturday, the holiday will be observed on Friday. If the holiday occurs on a Sunday, the holiday will be observed on a Monday.
Washington Township
- Robert C. Weisenberger, Zoning Enforcement Officer
e: rweisenberger@wtwp.com | p: 614.408.1007
POLICIES:
- The Zoning Department is responsible for enforcement of the Zoning Code within the unincorporated area of the township, issuing permits, assisting residents and property owners with zoning and land use questions and for providing informational assistance to the Zoning Commission and Board of Zoning Appeals. The purpose of applying and enforcing zoning regulations is to foster good planning, strengthen community appearance, and enhance the quality of life for residents.
- Washington Township's Land Use Plan Update (from Franklin County Development Dept.) was completed in Dec. 2005.
HOLIDAY SCHEDULE - Offices of Washington Township will be closed the following holidays:
- New Year's Day
- Memorial Day
- Independence Day
- Labor Day
- Thanksgiving Day and the Friday after
- Christmas Day
Village of West Jefferson
- Thomas Hale, Chief Building Official
e: thale@westjeffersonohio.gov | p: 614.379.5246 - Kristie West, Zoning & Code Enforcement
e: kwest@westjeffersonohio.gov | p: 614.379.5250 - Lenny Lewis, Chief Building Inspector
e: llewis@westjeffersonohio.gov | p: 614.879.5339
HOLIDAY SCHEDULE - The Village of West Jefferson offices will be closed the following holidays:
- New Year's Day
- Martin Luther King, Jr. Day
- President's Day
- Good Friday
- Memorial Day
- Independence Day
- Labor Day
- Thanksgiving Day & Friday after Thanksgiving
- Christmas Eve & Christmas Day
City of Westerville
- Edward Ungar, Chief Building Official
e: edward.ungar@westerville.org | p: 614.901.6651 - Karl Craven, Director of Planning & Development
e: karl.craven@westerville.org | p: 614.901.6677 - Bryan Wagner, Code Enforcement Supervisor
e: bryan.wagner@westerville.org | p: 614.901.6657 - Nate Lang, City Engineer
e: n.lang@westerville.org | p: 614.901.6674 - Bassem Bitar, Senior Planner
e: bassem.bitar@westerville.org | p: 614.901.6658
HOLIDAY SCHEDULE - City of Westerville offices will be closed the following holidays:
- New Year's Day
- Martin Luther King, Jr. Day
- Memorial Day
- Independence Day
- Labor Day
- Thanksgiving and the Friday after
- Christmas Day
City of Whitehall
- Zach Woodruff, City Administrator
e: zachary.woodruff@whitehall-oh.us - Mike Hulsey, Chief Building Official and Zoning Administrator
p: 614.237.8612 | e: mike.hulsey@whitehall-oh.us
POLICIES:
- To schedule an inspection, call 614.237.8612.
Inspection calls received before 3 PM Monday through Friday (excluding holidays) may be scheduled for the next business day (as availability allows), except for life safety and occupancy inspections, which require a 48-hour business day prior notice. - Codified Ordinances for Whitehall, OH - Before you build, remodel, or open a business, check Whitehall's Permit Requirements online.
HOLIDAY SCHEDULE - The City of Whitehall will be closed the following holidays:
- New Year's Day
- Memorial Day
- Independence Day
- Labor Day
- Thanksgiving Day and the Friday after
- Christmas Day
City of Worthington
- Donald L. Phillips Jr., PE., Chief Building Inspector
e: don.phillips@worthington.org - Chris Keppler, Code Enforcement Officer
e: chris.keppler@worthington.org - Jerry L. Graves, Building Inspector
e: jerry.graves@worthington.org
POLICIES:
- Effective Jan. 1, 2019 - The City of Worthington enforces the 2019 Residential Code of Ohio.
- Effective Nov. 1, 2017 - The City of Worthington enforces the 2017 Ohio Building Code.
HOLIDAY SCHEDULE - The City of Worthington will be closed the following holidays:
- New Year's Day
- Martin Luther King Day
- Memorial Day
- Juneteenth
- Independence Day
- Labor Day
- Veteran's Day
- Thanksgiving - Nov. 23 & 24
- Christmas Day